Chào mừng quý khách đến với website XÂY DỰNG NHẤT TIẾN
Thực hiện ước mơ của bạn.Cam kết bảo hành 1 năm và sẵn sàng hỗ trợ khách hàng 24/7.Bạn hãy để lại email
số điện thoại trong phần liên hệ và gởi
chúng tôi sẽ có những phần quà gởi cho bạn.
Dịch Vụ Xin Phép Xây Dựng Nhà Đất Ở Quận.Thủ Đức
Dịch Vụ Xin Phép Xây Dựng Nhà Đất Ở TP.THỦ ĐỨC-TP.HCM
Bước 1: Lập thủ tục đo vẽ nếu giấy chứng nhận không có tọa độ,phải tiến hành vẽ lại bản vẽ hiện trạng vị trí có tọa độ,có dấu xác nhận của phòng tài nguyên môi trường.Nếu khách hàng đổi giấy chứng nhận luôn thì càng tốt
- Liên hệ trực tiếp những công ty có chức năng để tiến hành đo vẽ
Bước 2:
Hồ sơ xin phép xây dựng gồm
1. 2 Đơn xin cấp phép xây dựng theo mẫu quy định mới scan file pdf từ bản chính
2.Bản vẽ hiện trạng vị trí scan file pdf từ bản chính
3.Sổ hồng nhà scan file pdf từ bản chính
4.Bản cam kết đảm bảo công trình liên kề có chứng thực chữ ký tại phòng công chứng scan file pdf từ bản chính
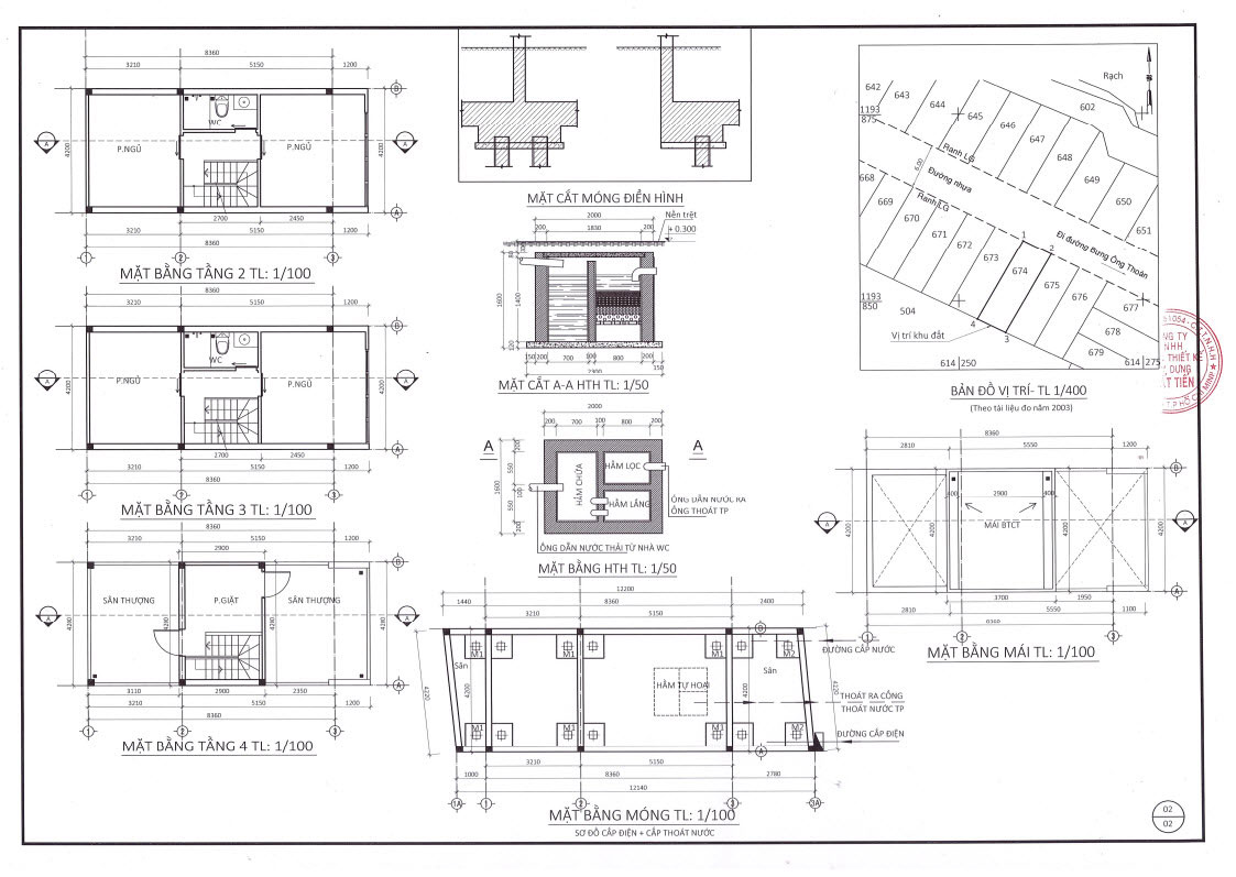
5.Bản vẽ thiết kế xpxd theo mẫu quy định của TP.Thủ Đức khổ A3
6.Nếu nhà xây dựng có tầng hầm thì phải có biện pháp thi công tầng hầm và giấy chấp thuận biện pháp thi công tầng hầm có chứng thực chữ ký tại phòng công chứng .Sau đó scan file pdf từ bản chính
7.Nếu sổ hồng cầm cố ở ngân hàng thì phải có văn phòng chấp thuận của ngân hàng đồng ý cho XPXD .Và cũng phải scan file pdf từ bản chính
8.Nếu chủ nhà không đi nộp thì phài làm giấy ủy quyền cho người khác nộp thay .Làm giấy ủy quyền ở phòng công chứng.Và cũng scan file pdf từ bản chính.
Bước 3: Nộp hồ sơ tại cổng dịch vụ công TP.HCM.Chọn đơn vị thụ lý là ỦY BAN TP.Thủ Đức
Bước 4: Sau khi nộp xong sẽ có số biên nhận .Nếu hồ sơ đạt yêu cầu Uỷ Ban TP.Thủ Đức sẽ hẹn ngày trả kết quả.Nếu hồ sơ không đạt sẽ báo kết quả qua tin nhắn và email mà khách hàng đăng ký.
THỜI GIAN XIN PHÉP XÂY DỰNG
- vẽ:BVXP : 2 ngày
- Thụ lý ở ỦY Ban TP.Thủ Đức: 15 ngày làm việc
- Tổng cộng: 23 ngày
LỆ PHÍ XIN PHÉP XÂY DỰNG
- Lệ phí cấp giấy phép xây dựng:theo hệ thống 75 ngàn
PHÍ DỊCH VỤ XIN PHÉP XÂY DỰNG TÙY THEO QUY MÔ VÀ SỐ TẦNG CỦA KHÁCH HÀNG.Khách hàng liên hệ qua số điện thoại và kết bạn Zalo số 0908592690 sẽ được tư vấn đầy đủ thông tin quy hoạch và sẽ gởi báo giá cho khách hàng.
Lưu ý: trước khi xây dựng, chủ nhà phải thông báo với UBND phường nơi xây dựng
CHÚ Ý:
- Những hồ sơ chưa có bản vẽ hiện trạng nhà hoặc bản vẽ hiện trạng cũ thì phải tiến hành đo vẽ lại không cần thẩm định của tài nguyên môi trường
Khách hàng có nhu cầu xin phép xây dựng nhanh tại TP.Thủ Đức hãy nhanh chóng liên hệ công ty TNHH tư vấn thiết kế xây dựng Nhất Tiến.Cam kết với khách hàng riêng tại quận thủ đức sẽ có giấy phép xây dựng đúng hẹn ghi trong giấy hẹn.
Hotline:0908592690


